Generales
Generador
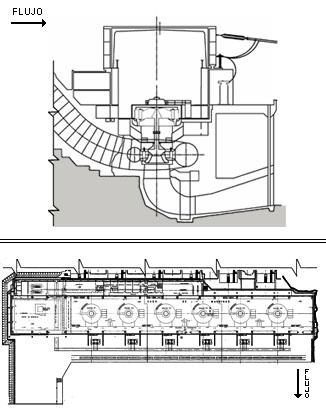
Caja Espiral
Tubo de Aspiracion
Muro Ala
Techo
Transformadores
Salas Auxiliares
Secciones y Detalles